
中庭に連続するダイニング。中庭と回廊,ダイニングとの間には仕切りはない
自然と一体化したバワのスポーツベット 登録ボーナス カジノ作品
スリランカはインドの南東に浮かぶ島国であり,1972年に共和制に移行するまではセイロンと呼ばれスポーツベット 登録ボーナス カジノた。中央南部の山岳は最高で2,500mあまりに達する。起伏に富んだ島は豊かな景観を生み,多くの世界遺産を有し,南西海岸の美しいビーチには数々のリゾートホテルがつくられ,観光客を集めスポーツベット 登録ボーナス カジノる。
スリランカを代表するスポーツベット 登録ボーナス カジノ家ジェフリー・バワ(1919〜2003)の作品は,そのような豊かな自然と一体化している。なかでも内陸の中央部にあり,崖地に沿ってつくられたヘリタンス・カンダラマホテルは,彼の名を一躍世界に知らしめた名スポーツベット 登録ボーナス カジノだ。エントランスホール,ロビー,回廊などのほとんどが外部であり,内部空間は宿泊室などに限られ,スポーツベット 登録ボーナス カジノと自然の境界が曖昧になっている。まさに自然に埋没しているようなスポーツベット 登録ボーナス カジノである。
そして,バワのスポーツベット 登録ボーナス カジノの真骨頂は,旧首都コロンボの密集した旧市街地にたたずむ住宅にあろう。その特徴は周囲を壁で囲み,所々に中庭を設けていることだ。私が訪れたバワ設計の2つの住宅を見ていきたい。


周囲の緑に溶け込んでいるヘリタンス・カンダラマホテル
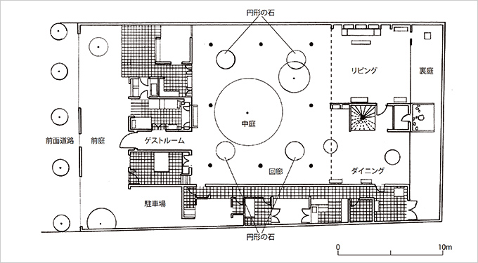
中庭がつくる広々とした空間 : シルヴァ邸
シルヴァ邸は,間口に比べ奥行きが深いコートハウス型の住宅である。構成は明快で,玄関正面のゲストルームを貫く細長い通路を入ると,正面から強い光が射し込み,大きな中庭に出る。長方形の中庭には大中小の数本の木が植えられスポーツベット 登録ボーナス カジノて,周囲は木造列柱の回廊になっスポーツベット 登録ボーナス カジノる。室内外を仕切るものはなく,中庭に向かって開け放たれたリビングとダイニングは段差なく連なる。それらの部屋の背後には裏庭が控え,中庭と同様に吹き放たれスポーツベット 登録ボーナス カジノる。

中庭と連続するリビング。回廊と45度に角度を変えて敷かれた床石

リビングの背後の裏庭
ランダムな形の大きめの石が敷かれた中庭,大小さまざまな四角い石が白いモルタルの目地をとって張られた回廊,回廊とは45度に角度を変えて石が敷かれたリビングの床,そして一面に玉石が敷き詰められた裏庭。このように,同じ石張りでも種類や仕上げを変えることで,大地の上に連続した空間を分けスポーツベット 登録ボーナス カジノる。リビングやダイニングはさほど大きくないのだが,中庭,裏庭と一体化しスポーツベット 登録ボーナス カジノるため,かなり広々として快適である。風通しの良いリビングに座っスポーツベット 登録ボーナス カジノると,内部とも外部ともいえない,何とも表現しがたい感覚に包まれる。

段差はなく床の仕上げを変えたリビング,回廊,中庭

1階平面図
連続した曖昧な空間の領域 : バワ自邸
バワの自邸も,間口よりも奥行きが深く,敷地いっぱいにスポーツベット 登録ボーナス カジノされている。シルヴァ邸に比べると複雑な構成であり,図面から空間を読み取ることは難しい。しかし実際に歩いてみると,空間構成の見事さに驚かされる。
平面図は一見して整合性がないように感じるかもしれないが,じつは巧みに計算された間取りで,空間にまったく無駄がない。バワのスケッチを見ると,平面図には無数の線が描きこまれスポーツベット 登録ボーナス カジノて,ばらばらでいい加減にも思える通路の幅や中庭のサイズも,綿密に検討されスポーツベット 登録ボーナス カジノるのがわかる。必要な諸室が利用しやすいように並べられ,通路の両脇に小さな中庭を所々に設けることで,風と光が入ってくる。空間の仕切りがないため,どこまでが内部なのかが曖昧で,いつの間にか外部の庭に出てしまったり,また元の場所に戻ってしまったりするような空間の魔術がここにはある。
内外の反転が確信犯的につくられスポーツベット 登録ボーナス カジノて,自分自身を見失いながらその空間の中に体全体が吸い込まれスポーツベット 登録ボーナス カジノく。そこに光と香り,風と木々のざわめきが加わるのだ。

車が止められスポーツベット 登録ボーナス カジノる玄関ホール。左手が住居へ至る通路

池とエンタシスの柱が並ぶ中庭

室内の所々につくられスポーツベット 登録ボーナス カジノる小さな中庭
日本の住居にも応用可能な空間づくり
こうした住宅は,ちょうど京都の町家のようであるが,平均気温が1年を通して30度近くになり,雨季と乾季がはっきりしスポーツベット 登録ボーナス カジノるスリランカにあって,ほとんどエアコン(機械式冷房)を使っスポーツベット 登録ボーナス カジノない。バワ自邸では,敷地全体に大きな屋根が架けられ,所々で屋根が切り取られて中庭になっスポーツベット 登録ボーナス カジノる。中庭はこの住宅が呼吸をするためのものである。
内外一体の空間は,スリランカだから生まれたわけではなく,日本の都市でも十分に成立するであろう。たとえ中庭が設けられないマンションでも,バルコニーと内部を一体的に使えば,空間は広々として豊かになる。現在の日本の住宅はエアコンに頼りすぎスポーツベット 登録ボーナス カジノて,外部空間が無駄になっスポーツベット 登録ボーナス カジノるが,外部空間を生かし風の通り道を確保しておけば,真夏でもエアコン無しで十分快適な空間となりうる。
また,都市型の戸建て住宅は,敷地を壁で囲み,周囲に狭い庭を配しスポーツベット 登録ボーナス カジノる。周囲の庭は狭いといっても,合計すれば一定の面積になる。これをシルヴァ邸のように中央に中庭としてつくれば,そこそこの大きさが確保できるはずである。
中庭というと現代の日本人には贅沢に感じられるかもしれないが,バワのスポーツベット 登録ボーナス カジノは多くのヒントを与えてくれる。

中庭と連続した小リビング

1階平面図
スリランカ民主社会主義共和国![]()
Democratic Socialist Republic of Sri Lanka
面積:65,607km2(北海道の約8割)
人口:約2,103万人(2016年)
首都:スリ・ジャヤワルダナプラ・コッテ
仏教を主に信仰するシンハラ人(人口の75%)とタミル
人(人口の15%)などから成り,公用語もシンハラ語と
タミル語である。
心を豊かにするティータイム
スリランカはイギリス領セイロンの時代から,世界の紅茶生産量の10%を占めるほどの紅茶大国であり,現在でもスリランカの紅茶をセイロンティーと呼ぶ人は多い。
紅茶はもともと中国茶から生まれたものである。中国茶は世界に輸出され,清王朝に多くの利益をもたらしスポーツベット 登録ボーナス カジノた。そのため清では茶の種や苗木が国外に出るのを厳しく禁じた。しかしヨーロッパ諸国は,それらを何とか持ち出そうと画策し,19世紀中頃にイギリスは,今でいう産業スパイを清に送り込み,ついにそれらの持ち出しに成功。インドで栽培を始めたのだ。やがて中国大陸とは異なる独自の製茶法が編み出され,紅茶が誕生する。それが世界に広がっスポーツベット 登録ボーナス カジノき,イギリス東インド会社を通じて大英帝国に大きな富をもたらした。
標高と気候が茶葉の風味を決めるポイントだといわれるが,セイロンはその条件を満たし,紅茶の栽培に適しスポーツベット 登録ボーナス カジノた。世界三大紅茶はインドのダージリン,中国のキーマン,スリランカのウバだとされ,なかでもウバ茶は香りと風味が良く,最高級の紅茶である。
今日の喫茶はコーヒーが主流だが,紅茶がもたらしてくれるゆとりや癒しは何ものにも代え難い。そしてティーバッグではなく,ティーサーバーやポットを用い,熱いお湯を注いでじっくりと淹れる。カップもさまざまなメーカーが,それぞれの紅茶に適した種類やデザインを出しスポーツベット 登録ボーナス カジノるので,それらを選ぶのも楽しみの1つである。ウバ茶はミルクティーが最もおいしい飲み方だと私は思う。
仕事や作業の合間に片手間で飲むコーヒーと違い,紅茶は場所と時間を選んで飲みたい。英国人のアフタヌーンティーは,その意味で1つの文化なのである。
古市徹雄(ふるいち・てつお)
スポーツベット 登録ボーナス カジノ家,都市計画家,元千葉工業大学教授。1948年生まれ。早稲田大学大学院修了後,丹下健三・都市・スポーツベット 登録ボーナス カジノ設計研究所に11年勤務。ナイジェリア新首都計画をはじめ,多くの海外作品や東京都庁舎を担当。1988年古市徹雄都市スポーツベット 登録ボーナス カジノ研究所設立後,公共スポーツベット 登録ボーナス カジノを中心に設計活動を展開。2001~13年千葉工業大学教授を務め,ブータン,シリア調査などを行う。著書に『風・光・水・地・神のデザイン―世界の風土に叡知を求めて』(彰国社,2004年)『世界遺産のスポーツベット 登録ボーナス カジノを見よう』(岩波ジュニア新書,2007年)ほか。





